ACER
CRW622
|
Device Type |
Internal CD-ROM |
|
Interface |
ATAPI |
|
Spin Rate (Read/Write) |
2x Write, 6x Read |
|
Formats Supported Read |
CD-XA, CD-DA, CD-I, Photo-CD, CD-Extra |
|
Formats Supported Write |
CD-DA, CD-I, Photo-CD, CD-Extra |
|
View |
Top |
|
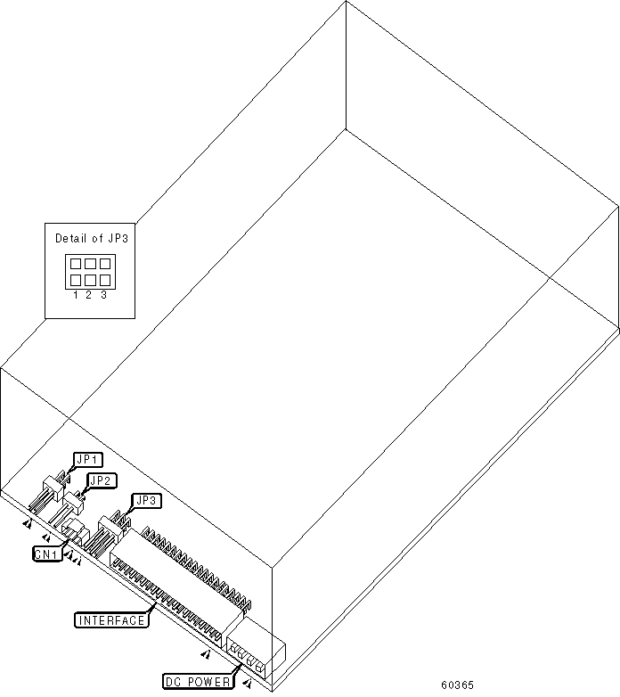
CONNECTIONS | |
|
Function |
Label |
|
Audio line out |
CN1 |
|
USER CONFIGURABLE SETTINGS | |||
|
Setting |
Label |
Position | |
| » |
Factory configured - do not alter |
JP1 |
Unidentified |
| » |
Factory configured - do not alter |
JP2 |
Unidentified |
|
ATAPI MASTER/SLAVE | |||
|
Setting |
JP3/1 |
JP3/2 |
JP3/3 |
|
Master/Slave determined by Cable Select |
Closed |
Open |
Open |
|
Single drive only |
Open |
Open |
Closed |
|
Master in two drive system |
Open |
Open |
Closed |
|
Slave in two drive system |
Open |
Closed |
Open |